RACK MOUNT COMPUTER - 15 Series - 3U

|
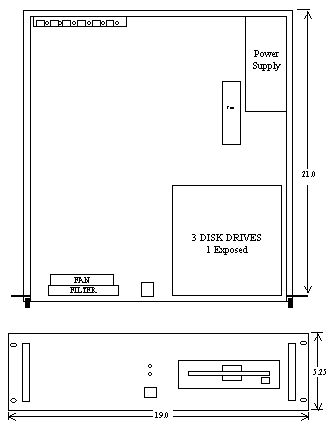
This is a spacer saver model for rack mount PCs and requires no raiser card. All cables and wires are connected in the back of the chassis. One CD-ROM opening and 2 internal HDD spaces are available. The motherboard sits on a universal mounting plate for easy removal. A 12VDC fan is mounted behind the front panel with a filter to intake air and pressurize the inside, to prevent dust from entering. Additional CPU fan included. Power supply with power factor correction is included (up to 350W). Custom cutout and silk screen print on front panel is available to meet your specific needs. FEATURES:
|
|
![]() |
Add suffix-x to indicate your choice of color: -E beige face plate |
